Planta Elevador Monta-Cargas
Agilidade, eficiência e segurança são premissas indispensáveis a um monta-cargas. Para atender a esses requisitos, desenvolvemos o Monta-Cargas Vertbox®, com capacidade de carga entre 20 e 300 kg.

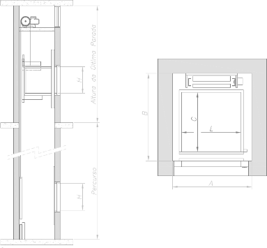
Com baixo custo e rápido retorno do investimento, o Monta-cargas Vertbox® é indicado para as mais variadas aplicações, podendo ser confeccionado em diversos tamanhos e configurações. Suas dimensões máximas, definidas pela norma ABNT, são de 1,0 m de largura x 1,0 m de comprimento x 1,2 m de altura.

Ideal para aumentar a produtividade dos negócios, esse monta-cargas é seguro, robusto, silencioso, eficiente e ágil, fabricado com materiais de qualidade.

ENTRE EM CONTATO E SAIBA MAIS DO MONTA-CARGAS
Monta-cargas Vertbox®
Atributos do
monta-cargas
Zenit®
  • Cabina em aço inox com porta;
  • Motor elétrico eficiente e silencioso;
  • Contatos elétricos de segurança;
  • Atendimento à norma ABNT NBR 14712;
  • Portas travadas quando a cabina não estiver no andar.
Disponível em duas configurações de entrada (unilaterais ou opostas), o monta-cargas Vertbox® pode ser confeccionado com nível de parada no piso ou acima dele. Sua tensão de alimentação pode ser monofásica ou trifásica.

Além de toda a qualidade e versatilidade do Vertbox®, o equipamento também pode ser personalizado, dependendo da necessidade de cada aplicação.

Dentre os itens opcionais, destacam-se as prateleiras intermediárias, chave de bloqueio, portas automáticas, inversor de frequência e estrutura metálica.

ENTRE EM CONTATO E SAIBA MAIS DO MONTA-CARGAS